冷庫工程
果蔬保鮮冷庫
茶葉保鮮庫建造
鮮花保鮮庫
水產海鮮冷庫
大型冷庫設計 、大型冷庫工程建造
中大型冷庫工程建造
大型物流冷庫規劃建造
醫藥冷庫設計建造
速凍冷庫設計與建造
氣調庫設計建造
杭州小型冷庫安裝
食品冷庫建造安裝
雙溫冷藏庫安裝
藥品冷庫GSP驗證
酒店雙溫冷庫、食堂冷庫、餐飲雙溫冷庫設計造
新聞中心
聯系我們
免費咨詢熱線:400-8269-609
聯系人:業務部 高經理
24小時咨詢:15355424256
電話:0571-87139668
傳真:0571-87139629
地址:杭州市上城區九和路九和人家3幢2樓
食品公司生產車間冷庫建造工程設計
時間:2024-05-27 ??編輯:庫華制冷 ??瀏覽:
食品公司生產車間冷庫建造工程設計
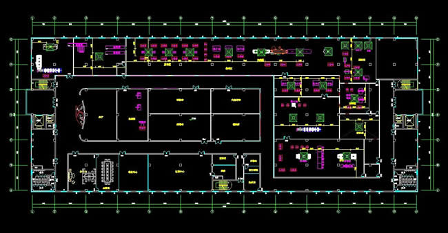
1、冷庫規模:約1300平方,有8間冷庫,其中有6間冷凍庫,冷凍庫溫度為-25~-20℃;有2間常溫庫,常溫庫溫度為15℃。含冷藏區、分揀區、打包區、研發區、操作間等。
2、建筑性質:冷庫
3、設計范圍:
冷庫的制冷、保溫、控制、照明等,以及制冷工藝、制冷機房、制冷設備安裝調試、庫房保溫施工、基礎設施等相關要求和圖紙。
4、設計依據:
《冷庫設計規范》GB150072-2021
《冷庫安全規程》GB128009-2011
《制冷設備、空氣分離設備安裝及驗收規范》GB150274-2010
《工業設備及管道絕熱施工及驗收規范》GB150185-2010
《輸送流體用無縫鋼管》GB18163-2010
《空調與制冷設備用銅管》GB1/T17791-2007
《冷庫制冷工藝設計手冊》ISB1N109-0116-X/TH66
《制冷和供熱用機械制冷系統安全要求》GB19237-2001
《組合冷庫用隔熱夾芯板》JB1/T6527-2006
《建筑設計防火規范》GB150316-2006
《通用電設備配電設計規范》GB150055-2011
《采暖通風與空氣調節設計規范》GB150019-2003

(制冷設備及管道布局圖)

(冷庫庫房分區)
上一篇:大型食品低溫冷凍庫冷庫設計方案
下一篇:沒有了
下一篇:沒有了



浙公網安備 33010402001705號
